Des projets d'exception

Nice FABRON -Appartement 2 Pièces 44 m2, Terrasse 16 m2

Nice

Fabron

250 000
€ (*)
44
2
Pièce(s)
Appartement
Le bien en quelques mots...
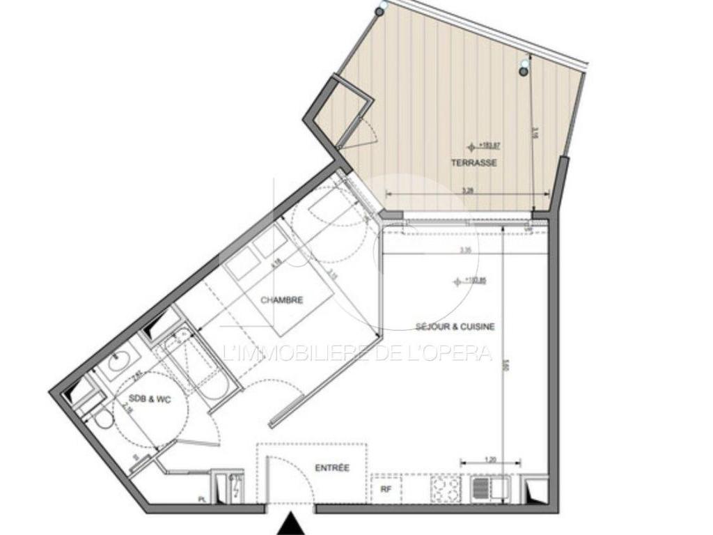
Nice FABRON -Appartement 2 Pièces 44 m2, Terrasse 16 m2 Situé en position dominante sur une des plus belles collines de Nice FABRON Résidence Haut Standing..Appartements de 2 Pièces de 44 m2 en RDC. Piscine dans la résidence.Vue Mer.. Appartement de 2 Pièces 44 m2 + Terrasse 16 m2 1 Chambre, 1 salle de Bains Prix : 250 000 euros (HAI) Honoraires Charge Vendeur ***Stationnement : 30 000 euros Livraison : 3T2023 ref: A02
Détails et prestations 1 Chambre(s)1 Salle(s) de bain
Non soumis au DPE
250 000 € Prix honoraires inclus *

*Honoraires d'agence à la charge de l'acquéreur.

0 % TTC * Honoraires250 000 €Prix hors honoraires agence Consulter nos honoraires
Copropriété : Oui Nb de lots : N.C. N° de Lot : N.C. Quote-part : N.C.
0 € Charges annuelles 0 € Taxe foncière

Propriétés Similaires

Brignoles - Appartement 70.2m2
250 000 €
Roquebrune-cap-martin - Appartement 51.6m2
255 000 €
Fréjus - Appartement 57.9m2
299 100 €
Ce site utilise Google Analytics. En continuant à naviguer, vous nous autorisez à déposer un cookie à des fins de mesure d'audience. OK En savoir plus